Description
| Technical parameters of 20-foot double-wing expandable house | |||||||
| Basic Information | Expanded dimension(mm)L*W*H | L5900*W6300*H2480 |
only for reference |
||||
| interior dimension(mm)L*W*H | L5640*W6140*H2240 | ||||||
| folded dimension(mm)L*W*H | L5900*W2200*H2480 | ||||||
| weight(KG) | 2500 | ||||||
| Framework | Main beam | Galvanized square tube 80*100*2.5MM Q235 | ![]() |
||||
| Columns | Galvanized folding parts150*210*2.0MM Q235 | ||||||
| secondary frame | Galvanized square tube 40*60*1.5MM Q235 | ||||||
| cabinet suspension head | Galvanized 210*150*160*4MM Q235 | ||||||
| hinge | Galvanized heavy-duty hinge Q235 | ||||||
| Floor | center segment floor | 18mm cement floor | |||||
| side floor | 18mm Bamboo plywood | ||||||
| Heat-insulation sandwich wall | side walls | 75mm sandwich panel with double-sided 0.35mm color-coated steel (sandwich material options include rock wool and EPS, selectable). The standard sandwich material is 12kg/m³ EPS | |||||
| partition | 50mm sandwich panel with double-sided 0.35mm color steel sheet as the base material. same thermal insulation material as above | ||||||
| Main roof and side roof | 50mm sandwich panel with double-sided 0.35mm color steel sheet as the base material. same thermal insulation material as above | ||||||
| Electrical system | parameters | 1.Standard national standard wiring; 6mm² for the main line, 4mm² for air conditioner sockets, 2.5mm² for regular sockets, and 1.5mm² for lighting. (Customizable to meet certification requirements based on the country of use) 2.Circuit breaker system; 1 unit of 2P63A main switch, and one each of 2P43A/2P32A/1P20A branch residual current circuit breakers. 3.Lighting; Equipped with six flameproof LED ceiling lights. 4.Outlets; Standard international three-pin outlets (configurable to meet customer-specific outlet standards). |
|||||
| Door and window system |
Entrance door | Standard steel security door (customizable to thermal break aluminum, titanium-magnesium alloy, or aluminum alloy entrance door) | |||||
| window | Standard plastic steel double-glass casement windows (high-end broken bridge aluminum windows and aluminum alloy windows can be customized) | ||||||
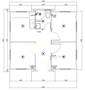
| Layouts | |||||||
| layouts | 1bedroom1bathroom 1kitchen 1living room | 2bedroom1bathroom 1kitchen 1living room | 3bedroom1bathroom 1kitchen 1living room | ||||
![]() |
![]() |
![]() |
|||||
| Bathroom | |||||||
| Dimension | L1720*W1420 | L2500*W1420 | L1720*W1420 | ||||
| Layouts | ![]() |
![]() |
![]() |
||||
| Actual Photos | ![]() |
![]() |
![]() |
||||
| Cabinets(optional) | L shaped cabinets | ![]() |
cabinet A size;L1750*W530*H750 cabinet B size;L1600*W530*H750 |
||||
| Please note that the floor plan drawings are provided for reference purposes only. For precise details, refer to the textual descriptions in the specification sheet | |||||||

















Reviews
There are no reviews yet.